Es Villa
Bizimle İletişime Geçin

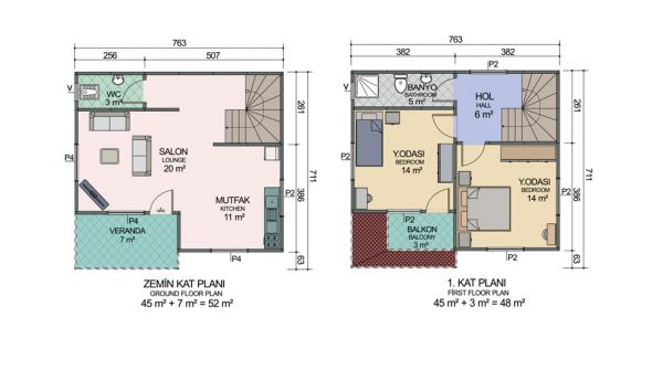
155 m2 Çift Katlı Prefabrik Ev

Ürünler Çift Katlı Prefabrik Evler
Fiyata Dahil Olan
  • Konut malzemelerinin indirilmesi ve montajı
  • Prefabrik bina elemanları (duvar panelleri ve çelik birleşim elemanları)
  • Prefabrik bina tavan kaplaması, tavan yalıtımı ve çatı kaplamanın yapılması
  • Konut dış ve iç kapıları ve montajı
  • Konut pencereleri ve montajı (çift cam PCV)
  • Sıva altı elektrik ve su tesisatının çekilmesi
  • Elektrik armatürlerinin montajı
  • Konut dış ve iç boya işlerinin uygulanması
Fiyata Dahil Olmayan
Zemin betonu ve her türlü hafriyat işleri.
Nakliye ve nakliye sigortası, gerekli ise iskele ve vinç temini
Zemin kaplama, zemin yalıtımı ve duvar kaplama işleri (şap,seramik,fayans,halı vs.)
Binanın kurulması için gerekli resmi izinlerin alınması
Telefon, bilgisayar ve UPS tesisatları.
Bina harici dış bağlantılar, ana pano, topraklama ve sayaçların takılması (Elektrik, Temiz ve Pissu vs.)
Isıtma ve soğutma tesisatları ( kalorifer, klima vs.)
Mutfak alt üst dolapları ve banyo dolapları ve verilen vitrifiye armatürlerin montajı
Şantiyede kullanılacak elektrik temini ve malzemenin çalınmaya karşı güvenliğinin sağlanması
155 M2 Plan
G-W2S74QBBRH